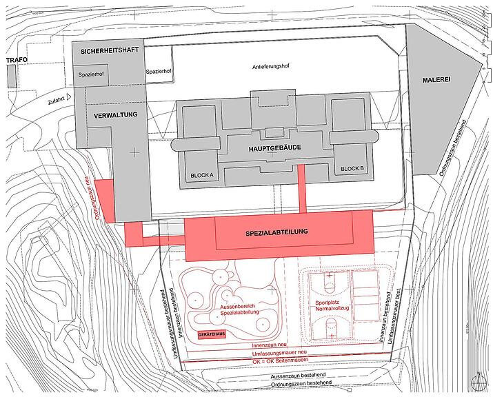
(haz) Für das Hauptgebäude der Justizvollzugsanstalt Bostadel (JVA Bostadel) aus dem Jahr 1977 besteht laut Medienmitteilung der Zuger Baudirektion dringender Sanierungsbedarf. Dieser umfasst bauliche, energetische und betriebliche Aspekte. Mit einem Erweiterungsbau innerhalb der Gefängnismauern, der während der Sanierung verdichtet genutzt wird, kann der Betrieb der JVA Bostadel durchgehend aufrechterhalten werden. Nach der Gesamtinstandsetzung des Hauptgebäudes soll der Neubau als Spezialabteilung für alte und langzeitverwahrte Gefangene genutzt werden können.
Der politische Startschuss für dieses Vorhaben ist erfolgt. Dies dank dem gestrigen Beschluss der Regierungen der Kantone Basel-Stadt und Zug, die der Vorlage zur Justizvollzugsanstalt Bostadel zugestimmt haben. Diese umfasst den Objektkredit für die Planung der Gesamtinstandsetzung des Hauptgebäudes und des Erweiterungsbaus einschliesslich den dafür erforderlichen Anpassungen am Verwaltungstrakt. Die Vorlage geht in die Kantonsparlamente, die nun darüber befinden.
Beteiligung des Bundes
Die Gesamtkosten des Vorhabens inklusive der Planungskosten belaufen sich gemäss Grobkostenschätzung auf 66,6 Millionen Franken. Die Nettokosten betragen abzüglich der Bundesbeiträge 50,35 Millionen Franken. Davon fallen gemäss Staatsvertrag in einem Verhältnis von drei Vierteln zu einem Viertel 37,76 Millionen Franken auf den Kanton Basel-Stadt sowie 12,59 Millionen Franken auf den Kanton Zug. Der in der Vorlage beantragte Objektkredit für die Planung des Vorhabens bis zur Baubewilligung beträgt laut Medienmitteilung 5,35 Millionen Franken. Auch dafür entfallen 75 Prozent der Ausgaben auf den Kanton Basel-Stadt und 25 Prozent auf den Kanton Zug.
Baustart im Jahr 2026
Voraussichtlich werden sich die Kantonsparlamente von Basel-Stadt und Zug im Frühjahr 2021 mit den Vorlagen beschäftigen. Anschliessend soll ein Architekturwettbewerb durchgeführt werden. Im Grobterminprogramm ist eine etappenweise Realisierung des Bauvorhabens bei laufendem Betrieb vorgesehen. Dabei wird mit dem Erweiterungsbau von 2026 bis 2028 sowie der Gesamtinstandsetzung des Hauptgebäudes von 2028 bis 2031 gerechnet.
Für die Zukunft gewappnet
Dank der Verbindung der fälligen Gesamtinstandsetzung des Hauptgebäudes mit dem Neubauprojekt kann die JVA Bostadel für die nächsten 40 bis 50 Jahre mit einer optimierten Betriebsgrösse sowie einem Angebot an spezialisierten Haftplätzen weitergeführt werden. Bei den künftig 140 Plätzen (aktuell 120) handelt es sich um 108 Plätze im Normalvollzug, 12 Plätze in der Sicherheitsabteilung sowie neu 20 Plätze in der Spezialabteilung für alte und langzeitverwahrte Gefangene. Aus ökonomischen Überlegungen macht es Sinn, neue Haftplätze innerhalb bestehender Anstalten zu schaffen.
Bedarf für Spezialabteilung
Steigendes Alter und zunehmende Gebrechen von Insassen mit langen Haftstrafen und Verwahrungen wirken sich auf den Justizvollzug aus. Die Betreuung ist intensiver als üblich und die medizinische Versorgung muss gewährleistet sein. Das erfordert den Pflegebedürfnissen entsprechende Zellen sowie spezielle Betreuungsräume für das Sicherheits- und das Pflegepersonal. Die Bedarfsabklärung für die geplante Spezialabteilung in der JVA Bostadel erfolgte in enger Abstimmung mit dem Bundesamt für Justiz.


Kommentare
Bitte beachten Sie unsere Richtlinien, die Kommentare werden von uns moderiert.
Zu diesem Thema wurden noch keine Kommentare geschrieben.